注册结构工程师(一级专业考试-下午)模拟试卷8
-
在使用阶段,恒载Mg=213kN·m;活载Mp=271.88kN·m;恒载与活载之和Mg+Mp=484.88kN·m。计算开裂弯矩Mf=459.06kN·m,短期使用荷载作用下总挠度为( )。
- A.22.56mm
- B.24.32mm
- C.20.13mm
- D.21.54mm
-
假定预应力钢筋中的预加力Ny0为720.6kN,开裂截面混凝土的名义拉应力为( )。
- A.3.45 MPa
- B.3.73 MPa
- C.3.86 MPa
- D.2.54 MPs
-
已知先张法部分预应力混凝土简支空心板梁的跨中截面尺寸如下图所示。计算跨径L0=12.60m。空心板采用40号混凝土,弹性模量Eh=3.3×104N/mm2,预应力钢筋选用,其截面面积Av=1256mm2。已求得预应力钢筋重心处的压应力为零时,预应力钢筋的预应力值σy0=565.86N/mm2。等效工字形截面几何特性:换算截面面积A0=319 144mm2,换算截面对形心轴的静矩S0=31 725 531mm3,换算截面对受拉边缘的截面抵抗矩W0=5.104×107mm3,换算截面对形心轴的惯性矩I0=1.475×1010mm4,截面开裂后的换算截面惯性矩I10=3.642×109mm4,预应力的合力至形心轴的距离eoy=249mm。

预应力钢筋中的预加力为( )。
- A.710.7kN
- B.710.2kN
- C.698.21kN
- D.745.23kN
-
假定预应力钢筋中的预加力为720.6kN,计算开裂弯矩为( )。
- A.467.89kN·m
- B.426.65kN·m
- C.459.05kN·m
- D.442.23kN·m
-
假定由腹板混凝土受压区和相应部分受拉钢筋Ag2承担的弯矩为86.43kN·m,则腹板相应部分受拉钢筋的截面面积Ag2为( )。
- A.10.69cm2
- B.12.03cm2
- C.11.85cm2
- D.11.30cm2
-
假定由两侧翼缘和相应部分受拉钢筋Ag1承受的弯矩Mj1为27.45kN·m,则由腹板混凝土受压区和相应部分受拉钢筋Ag2承担的弯矩为( )。
- A.80.06kN·m
- B.75.23kN·m
- C.87.55kN·m
- D.90.45kN·m
-
已知翼缘位于受压区的T形截面尺寸b'i=30cm,b=20cm,h'i=8cm,h0=46cm,采用20号混凝土,I级钢筋,承受计算弯矩Mj=115kN·m,经判断T形截面为II类T形截面。
计算两侧翼缘相应部分受拉钢筋的截面面积Ag1为( )。
- A.4.25cm2
- B.3.67cm2
- C.3.24cm2
- D.6.58cm2
-
若采用双肢箍筋,试配置箍筋加密区的箍筋,其与下列( )项数值最为接近。
- A.Φ8@100mm
- B.Φ12@100mm
- C.Φ10@100mm
- D.Φ14@100mm
-
如下图所示。公路桥中预制装配式T形梁翼板(车行道)构成铰接悬臂板,其主梁中距1800mm,梁腹板宽180mm。车行道板尺寸:板端厚100mm,板加腋处厚180mm,车行道板容重25kN/m3。板顶面层设两层:上层为沥青混凝土厚80mm,容重为23kN/m3;下层为混凝土面层厚70mm,容重24kN/m3。铰接悬臂板加腋处的每米板宽恒载弯矩(kN·m)与下列( )项数值最为接近。

- A.-2.3
- B.-0.65
- C.-4.56
- D.-10.26
-
计算该框架梁的剪力设计值V6(kN),与下列( )项数值最为接近。
- A.230
- B.282.7
- C.257.5
- D.272.5
-
某三跨框架结构,抗震等级为二级,边跨跨度为5.7m,框架梁截面宽250mm,高600mm,柱宽为500mm,纵筋采用HRB335钢,箍筋采用HPB235钢,混凝土强度等级为C30,重力荷载引起的剪力VGb=135.2kN。在重力荷载和地震作用组合下作用于边跨一层梁上的弯矩为:
梁左端:Mmax=210kN·m,-Mmax=-420kN·m
梁右端:Mmax=175kN·m,-Mmax=-360kN·m
梁跨中:Mmax=180kN·m
边跨梁:V=230kN
计算梁跨中截面正截面所需纵筋As(mm2),其与下列( )项数值最为接近。
- A.850
- B.393
- C.1170
- D.685
-
若梁左端梁底已配置2Φ25的钢筋,计算梁顶钢筋As(mm2),其与下列( )项数值最为接近。
- A.1672
- B.1992
- C.1170
- D.1964
-
钢筋混凝土塔筒的最小厚度tmin(mm)不宜小于( )。
- A.120
- B.140
- C.160
- D.200
-
有一幢钢筋混凝土框架—剪力墙结构,共9层,首层层高4.2m,其他各层层高3.6m,首层楼面比室外地面高出0.6m,屋顶有局部突出的电梯机房层高3m,在计算房屋高度时,下列( )项是正确的。
- A.33.6m
- B.36.6m
- C.33.0m
- D.36.0m
-
某高层钢结构,建于抗震设防烈度8度区,近震,场地类别为Ⅲ类。结构阻尼比为0.02,结构基本周期为2.5s。与结构基本周期相应的地震影响系数a,最接近于下列( )项数值。 采用规范:《高层民用建筑钢结构技术规程》(JCJ 99—98)
- A.0.030 72
- B.0.041 47
- C.0.036 25
- D.0.032 00
-
基本裹冰厚度是指离地面( )高度处根据观测资料统计50年一遇的最大裹冰厚度。
- A.10m
- B.20m
- C.50m
- D.80m
-
在计算圆筒形塔的动力特征时,可将塔身简化为多质点悬臂体系,每座塔的质点总数不宜少于( )。
- A.3
- B.5
- C.6
- D.8
-
高耸结构设计时,以下正常使用极限状态的控制条件( )是不正确的。
- A.风荷载标准值作用下,任意点的水平位移不得大于该点离地高度的1/100
- B.在各种荷载标准值作用下,应要求钢筋混凝土构件不出现裂缝,以防钢筋锈蚀
- C.在各种荷载标准值作用下,应要求钢筋混凝土构件的最大裂缝宽度不应大于0.2mm
- D.对有工艺要求的高耸结构,需控制塔身的转角
-
下列( )情况不属于高耸结构的正常使用状态。
- A.风荷载作用下的水平位移
- B.不均匀日照下的设备所在层的塔身转角
- C.钢筋混凝土构件的最大裂缝宽度
- D.小震作用下的水平位移
-
考虑一般高耸结构的裹冰荷载时,取最大裹冰厚度是按( )年一遇统计的。
- A.30
- B.50
- C.80
- D.100
-
高耸结构设计时,下列( )不是偶然组合的极限状态表达式确定原则。
- A.只考虑一种偶然作用与其他可变荷载组合
- B.偶然作用的代表值不应乘分项系数
- C.与偶然作用同时出现的可变荷载可根据具体情况采用相应的代表值
- D.当偶然荷载作用效应对结构有利时,分项系数取1.0,当偶然作用效应对结构不利时,分项系数取1.20
-
某正方形塔楼,平面尺寸为63.5m×63.5m,采用筒中筒结构,外筒为密柱框筒,底层每边有19根箱形截面钢柱,柱距为3.05m。柱截面面积A0=0.271m2,结构总体高度412m,承受风荷载设计值为2.5kN/m2。用简化方法计算该筒中筒结构底层柱承受的最大轴力N(kN),其与下列( )项数值最为接近。

- A.9830
- B.11 167
- C.7094.8
- D.8956.2
-
下列( )项物理指标不属于计算指标。
- A.密度ρ
- B.干密度ρd
- C.孔隙比e
- D.饱和度Sr
-
淤泥的天然含水量w和孔隙比e的数值下列( )项正确。
- A.w>wL;e≥1.5
- B.w>wL;e≤1.5
- C.w≥wP;e≥1.5
- D.w<wP;e≤1.5
-
某矩形框筒,平面尺寸如下图所示,总高度102m,承受水平力q=20kN/m,可简化成双槽形截面,等效槽形截面如图所示。角柱为L形、截面面积A3=6.41m2、形心坐标y=0.90m。槽形截面惯性矩为3056.5m4。计算图中底层3号柱所受的轴力N3(kN),其与下列( )项数值最为接近。

- A.1564.9
- B.1711.4
- C.2097.8
- D.1956.2
-
软弱下卧层顶面处自重压力与下列( )项值接近。
- A.48.4 kN/m2
- B.59.2 kN/m2
- C.156.9 kN/m2
- D.169.3 kN/m2
-
软弱下卧层顶面处地基承载力设计值与下列( )项值接近。
- A.137.3 kN/m2
- B.147.8 kN/m2
- C.156.9 kN/m2
- D.169.3 kN/m2
-
软弱下卧层顶面处附加压力与下列( )项值接近。
- A.46.7 kN/m2
- B.55.4 kN/m2
- C.64.33 kN/m2
- D.73.8 kN/m2
-
持力层承载力设计值与下列( )项值接近。
- A.251.7 kN/m2
- B.259.6 kN/m2
- C.269.5 kN/m2
- D.276.3 kN/m2
-
e=0.85时的基底压力最大值与下列( )项值接近。
- A.387.5 kN/m2
- B.393.6 kN/m2
- C.400.1 kN/m2
- D.409.1 kN/m2
-
假定CFG桩面积置换率m=5%。如下图所示,桩孔按等边三角形均匀布置于基底范围。试问,CFG桩的间距s(m),与下列( )项数值最为接近。

- A.1.5
- B.1.9
- C.1.7
- D.2.1
-
某独立柱基的基底尺寸为2600mm×5200mm,柱底由荷载标准值组合斯得的内力值:
F1=2000kN F2=200kN M=1000kN·m V=200kN
柱基自重和覆土标准值G=486.7kN:基础埋深和工程地质剖面如下图所示。

基础的偏心距e与下列( )项值接近。
- A.0.515m
- B.0.87m
- C.0.93m
- D.1.05m
-
假定Ra=450kN,试问,桩体强度fcu应选用下列( )项数值最为接近。
- A.10
- B.11
- C.12
- D.13
-
假定Ra=450kN,fapk=248kPa,桩间土承载力折减系数β=0.8。试问,适合于本工程的CFG.桩面积置换率m,与下列( )项数值最为接近。
- A.4.36%
- B.8.44%
- C.5.82%
- D.3.80%
-
试问,满足承载力要求的复合地基承载力特征值fspk(kPa),其实测结果最小值应与下列( )项数值最为接近。
- A.248
- B.300
- C.430
- D.335
-
下弦拉杆接头处采用双钢夹板螺栓连接,如下图所示。木材顺纹受力。试问,下弦的最大拉力设计值T(kN),与下列( )项数值最为接近。 提示:连接构造满足规范要求;连接钢板的强度有足够的保证;不考虑螺栓对杆件截面的削弱。

- A.144
- B.148.5
- C.166.3
- D.202.5
-
某高层住宅,地基基础设计等级为乙级,基础底面处相应于荷载效应标准组合时的平均压力值为390kPa,地基土层分布、土层厚度及相关参数如题图所示,采用水泥粉煤灰碎石桩(CFG桩)复合地基,桩径为400mm。

试验得到CFG桩单桩竖向极限承载力为1500kN。试问,单桩竖向承载力特征值Ra(kN),应取下述( )项数值。
- A.700
- B.750
- C.898
- D.926
-
假定有效桩长为6m。试问,按《建筑地基处理技术规范》(JGJ 79—2002)确定的单桩承载力特征值Ra(kN),应与下列( )项数值最为接近。
- A.430
- B.490
- C.550
- D.580
-
试问,对夹心墙中连接件或连接钢筋网片作用的下述理解,其中( )项有误。
- A.协调内外叶墙的变形并为叶墙提供支持作用
- B.提高内叶墙的承载力、增大叶墙的稳定性
- C.防止叶墙在大变形下失稳,提高叶墙的承载能力
- D.确保夹心墙的耐久性
-
某三角形木屋架端节点如题图所示。单齿连接,齿深hc=30mm;上、下弦杆采用干燥的西南云杉T015B,方木截面150mm×150mm,设计使用年限印年,结构重要性系数1.0。

如上图所示。试问,作用在端节点上弦杆的最大轴向压力设计值N(kN)应与下列( )项数值最为接近。
- A.34.6
- B.39.9
- C.45.9
- D.54.1
-
墙底截面破坏的受弯及受剪承载力与下列( )组数据最为接近。
- A.1.82kN·m,21.5kN
- B.1.82kN·m,19.74kN
- C.1.21kN·m,13.34kN
- D.1.57kN·m,19.74kN
-
下列砌体房屋抗震构造措施,不正确的是( )。
- A.砖砌体房屋底层的构造柱,必须伸入室外地面标高以下500mm处进行锚固
- B.多层内走廊房屋,局部加强的圈梁,8度区最大间距为11m
- C.后砌的非承重隔墙,应沿墙高每隔500mm配置2Φ6筋与承重墙拉结
- D.水平配筋的抗震砖墙,配筋率宜为0.07%~0.2%
-
一片高2m,宽3m,厚370mm的墙,如下图所示。采用普通烧结砖和M2.5砂浆砌筑。墙面承受水平荷载设计值为0.7kN/m2。

该墙的墙底截面的弯矩设计值及剪力设计值与下列( )项数值最为接近。
- A.1.4kN·m,1.4kN
- B.1.4kN·m,4.2kN
- C.4.2kN·m,1.4kN
- D.4.2kN·m,2.8kN
-
假设已知N0、N1合力的影响系数φ=0.836,则该垫块下砌体的局部受压承载力最接近下列( )项数值。
- A.296.5kN
- B.200.5kN
- C.243.3kN
- D.350.9kN
-
已知窗间墙截面的回转半径为156mm,设高厚比β=14.62,左柱在左、右风荷载下的承载力与下列( )项数值最为接近。
- A.492kN,468kN
- B.592kN,468kN
- C.549kN,469kN
- D.502kN,438kN
-
同上题,但大梁传给墙体的压力设计值改为N1=80kN,并已知此时梁端支承处砌体局部受压承载力不满足要求,应该在梁端下设置垫块。设垫块尺寸为bbabtb=550mm×370mm×180mm,垫块上N0、N1合力的影响系数φ最接近下列( )项数值。
- A.0.568
- B.0.963
- C.0.689
- D.0.836
-
某承重纵墙,窗间墙的截面尺寸如题图所示。采用MU10烧结多孔砖和M2.5混合砂浆砌筑。墙上支撑截面为200mm×500mm的钢筋混凝土大梁,跨度为5.7m,大梁传给墙体的压力设计值为N1=50kN,上部墙体轴向力的设计值在局部受压面积上产生的平均压应力为σ0=0.515N/mm2。

梁端下砌体的局部受压承载力的计算式最接近下列( )项表达式。
- A.ΨN0+N1=59.5kN≤ηγfA=70.6kNf
- B.ΨN0+N1=50kN≤ηγfA=70.6kN
- C.ΨN0+N1=50kN≤ηγfA=65.5kN
- D.ΨN0+N1=59.5kN≤ηγfA=65.5kN
-
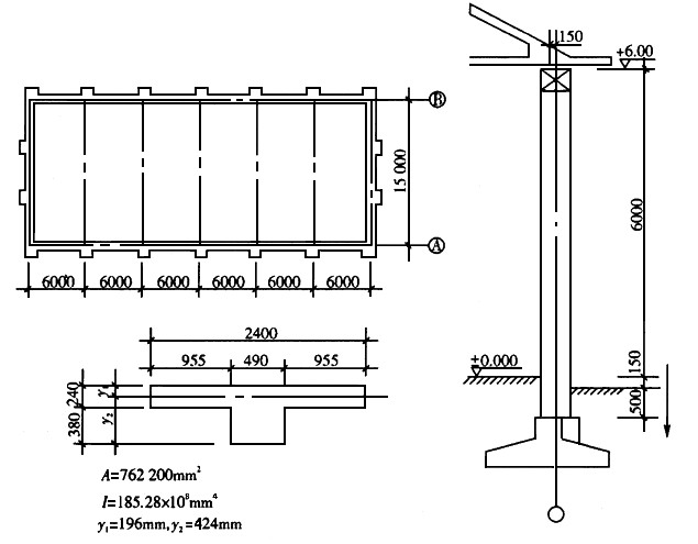
某单跨仓库,如下图所示,跨度15m,开间6m,共6个开间,属刚弹性方案。窗高3.6m,窗间墙宽2.4m,壁柱和墙厚见题图。檐口标高+6.0m。砖砌体用MU10砖,M5混合砂浆。左柱的柱底承受的N=340kN。承受的弯矩:左风时M左=26kN·m,右风时M右=35kN·m。

墙柱的计算长度与下列( )项数值最为接近。
- A.6.65m
- B.7.98m
- C.7.50m
- D.7.00m
-
A轴墙的翼缘宽度与下列( )项数值最为接近。
- A.6.00m
- B.4.90m
- C.2.40m
- D.3.60m
-
已知该墙承受轴向力设计值N=150kN,弯矩设计值M=6kN·m,假设砌体的抗压强度值为3.2N/mm2,则对该墙进行承载力计算时,其承载力计算式最接近下列( )项表达式。
- A.N=150kN≤φfA=191.9kN
- B.N=150kN≤φfA=185.3kN
- C.N=150kN≤φfA=176.5kN
- D.N=150kN≤φfA=204.6kN
-
截面尺寸为1200mm×100mm的窗间墙用MU10的单排孔混凝土砌块与Mb7.5砌块砂浆砌筑,灌孔混凝土强度等级G20,混凝土砌块孔洞率δ=35%,砌体灌孔率ρ=33%,墙的计算高度为4.2m,在截面厚度方向的偏心距e=40mm。
该灌孔砌体的抗压强度设计值与下列( )项数值最为接近。
- A.3.17N/mm2
- B.3.36N/mm2
- C.2.94N/mm2
- D.3.42N/mm2
-
如下图所示由混凝土翼板与钢梁通过弯起钢筋连接件组成简支组合梁,其连接件布置是( )。

- A.完全正确
- B.全部错误
- C.左边正确、右边错误
- D.左边错误、右边正确
-
计算下图所示之格构式压弯构件绕虚轴整体稳定性时,截面抵抗矩W1x=Ix/y0,其中y0=( )。

- A.y1
- B.y2
- C.y3
- D.y4
-
如下图所示节点板受斜向拉力设计值600kN,节点板与构件用双面角焊缝连接,hf=8mm,采用E43××型焊条,焊缝长度l=( )。

- A.260mm
- B.310mm
- C.360mm
- D.410mm
-
焊接残余应力对构件的( )无影响。
- A.变形
- B.静力强度
- C.疲劳强度
- D.整体稳定性
-
钢材的疲劳破坏属于( )破坏。
- A.脆性
- B.弹性
- C.塑性
- D.低周高应变
-
在钢梁底面设有吊杆,其拉力设计值850kN,吊杆通过T形连接件将荷载传给钢梁,连接件用双排M20摩擦型高强度螺栓与梁下翼缘连接,高强度螺栓性能等级为10.9级,摩擦面抗滑移系数μ=0.45,高强度螺栓应用( )个。
- A.4
- B.6
- C.8
- D.10
-
摩擦型高强度螺栓连接与承压型高强度螺栓连接主要区别是( )。
- A.摩擦面处理不同
- B.材料不同
- C.预拉力不同
- D.设计计算不同
-
在改建、扩建或加固工程中以静载为主的结构,其同一接头同一受力部位上,允许采用( )。
- A.高强度螺栓摩擦型连接与承压型连接混用的连接
- B.高强度螺栓与普通螺栓混用的连接
- C.高强度螺栓摩擦型连接与侧角焊缝或铆钉的混用连接
- D.普通螺栓与铆钉的混用连接
-
局部稳定验算时,如果角钢角顶内圆弧半径r=8mm,则构件的自由外伸宽厚比为( )。
- A.10
- B.9
- C.8.4
- D.7.4
-
下列叙述正确的是( )。
- A.腹板局部稳定性满足要求,受压翼缘局部稳定不满足要求
- B.腹板局部稳定性与受压翼缘局部稳定都不满足要求
- C.腹板局部稳定性满足要求,受压翼缘局部稳定也满足要求
- D.腹板局部稳定性不满足要求,受压翼缘局部稳定满足要求
-
当截面抵抗矩w1x=32.22cm3,ix=2.57cm,A=12.75cm2,N/NEX=0.2时,进行弯矩作用平面内稳定性验算时,角钢水平肢1的应力与下列( )项值接近。
- A.165.4N/mm2
- B.176.6N/mm2
- C.184.4N/mm2
- D.191.2N/mm2
-
当截面抵抗矩w1x=32.22cm3,ix=2.24cm时,构件在弯矩作用平面外的稳定性验算时,截面的应力与下列( )项值接近。 提示:φ6可按规范近似公式计算。
- A.201.8N/mm2
- B.209.6N/mm2
- C.212.9N/mm2
- D.216.5N/mm2
-
当截面抵抗矩w2x=15.55cm3,ix=2.57cm,A=12.75cm2时,N/NEX=0.2时,进行弯矩作用平面内稳定性验算,角钢肢2的应力与下列( )接近。
- A.184.4N/mm2
- B.191.2N/mm2
- C.202.3N/mm2
- D.211.7N/mm2
-
混凝土房屋进行结构设计布置时,以下考虑( )项为错误。
- A.加强屋顶楼面刚度对增大房屋伸缩缝间距有效
- B.在温度变化影响大的部位提高配筋率对增大伸缩缝间距有效
- C.温度伸缩缝宽度应满足防震缝宽度要求
- D.对有抗震要求的影剧院在主体与侧边附属房间可不设置防震缝
-
设计如下图所示的双角钢T形截面压弯构件的截面尺寸。截面无削弱,节点板厚12mm。承受的荷载设计值为:轴心压力N=38kN,均布线荷载q=3kN/m。构件长I=3m,两端铰接并有侧向支承,材料用Q235-B·F钢。构件为有长边相连的、两个不等边角钢280×50×5组成的T形截面如下图所示。

当ix=2.57cm时,杆件的屈服应力为( )。
- A.167kN
- B.176kN
- C.187kN
- D.190kN
-
设柱子上作用轴向力设计值N=750kN,初始偏心距ei=480mm,已知柱的受压区配置了4Φ22的钢筋,则截面的受压区高度与下列( )项数值最为接近。
- A.135mm
- B.298mm
- C.193 mm
- D.158mm
-
设计预应力混凝土构件时,σcon应按( )确定。
- A.按预应力钢筋强度标准值计算
- B.能使抗裂度越高越好
- C.愈高愈好,以减少预应力损失
- D.按承载力大小计算
-
设柱每侧配置5Φ20的钢筋,A's=As=1570mm2,柱子上作用轴向力设计值N=400kN,且已知构件为大偏心受压,则该柱能承受的弯矩设计值M最接近下列( )项数值。
- A.M=305kN·m
- B.M=267kN·m
- C.M=345kN·m
- D.M=392kN·m
-
已知一钢筋混凝土偏心受压柱截面尺寸b×h=400mm×500mm,柱子的计算长度10=4000mm,混凝土强度等级为C30,纵向钢筋HRB400,as=40mm。
该柱在某荷载组合下初始偏心距ei=76mm,系数ξ1=1,则轴向压力作用点至纵向受拉钢筋的合力点的距离e最接近下列( )项数值。
- A.167mm
- B.298mm
- C.193mm
- D.307mm
-
设构件为大偏心受拉,按荷载效应的标准组合计算的内力值为Nk=27kN,Mk=19kN·m,构件受力特征系数acr=2.4,最外层纵向受拉钢筋外边缘至受拉区底边的距离c=30mm,截面配置3Φ10的纵向受拉钢筋,as=a's)=35mm,则最大裂缝宽度ωmax最接近下列( )项数值。
- A.0.331mm
- B.0.005mm
- C.0.201mm
- D.0.198mm
-
偏心受拉构件的截面尺寸为b×h=200mm×400mm,as=a's=35mm,承受轴心拉力设计值N=30kN,弯矩设计值M=26kN·m,混凝土强度等级为C30,纵筋采用HRB335钢筋。
受压钢筋A's,所需的面积最接近下列( )项数值。
- A.160mm2
- B.258mm2
- C.102mm2
- D.529mm2
-
某框架结构的边框架梁,受有扭矩的作用,其截面尺寸及配筋,采用国标03G101-1平法表示于下图。 该混凝土梁环境类别为一类,其强度等级为C35;钢筋采用HPB235(Φ)和HRB335( );抗震等级为二级。设计校审时对该梁有如下几种意见,试指出其中( )项意见是正确的,并写出其理由。 提示:该题中不执行规范中规定的“不宜”的限制条件。

- A.该梁设计符合规范要求
- B.该梁设计有一处违反规范条文
- C.该梁设计有二处违反规范条文
- D.该梁设计有三处违反规范条文
-
某框架结构中的悬挑梁,如题图所示,悬挑梁长度2500mm,重力荷载代表值在该梁上形成的均布线荷载为20kN/m。该框架所处地区抗震设防烈度为8度,设计基本地震加速度值为0.20g。 该梁用某程序计算时未作竖向地震计算,试问,当用手算复核该梁配筋设计时,其支座负弯矩的设计值M0(kN·m)应与下列( )项数值最为接近。
- A.M0=62.50
- B.M0=83.13
- C.M0=75.00
- D.M0=68.75
-
当平面框架在竖向荷载作用下用分层法作简化计算时,顶层框架计算简图如下图所示。若用弯矩分配法求顶层梁的弯矩时,试问弯矩分配系数μBA和μBC最接近下列( )项数值。

- A.μBA=0.36;μBC=0.18
- B.μBA=0.18;μBC=0.36
- C.μBA=0.46;μBC=0.18
- D.μBA=0.36;μBC=0.48
-
根据抗震概念设计的要求,该楼房应作竖向不规则的验算,检查在竖向是否存在薄弱层。试问,下述对该建筑是否存在薄弱的几种判断,其中( )项是正确的,并说明其理由。 提示:①楼层的侧向刚度采用剪切刚度ki=GAihi。 式中:Ai=2.5(hci/hi)2Aci; ki为第i层的侧向刚度; Ai为第i层的全部柱子的截面积之和; hci为第i层柱沿计算方向的截面高度; hci为第i层的楼层高度; G为混凝土的剪切模量。 ②不考虑土体对框架侧向刚度的影响。
- A.无薄弱层
- B.第1层为薄弱层
- C.第2层为薄弱层
- D.第6层为薄弱层
-
试问,作用在底层中柱柱脚处的N(kN)的标准值(恒+活),和下列( )项数值最为接近。 提示:①活载不考虑折减。 ②不考虑第1层的填充墙体的作用。
- A.N=1259.8
- B.N=1342.3
- C.N=1232.5
- D.N=1417.3
-
当对2~6层⑤⑥—
轴线间的楼板(单向板)进行计算时,假定该板的跨中弯矩为0.1ql2,试问该楼板每米宽板带的跨中弯距设计值M(kN·m)应和下列( )项数值最为接近。- A.M=12.00
- B.M=16.40
- C.M=15.20
- D.M=14.72
-
当简化作平面框架进行内力分析时,作用在计算简图17.000m标高处的P1,和P2(kN),应和下列( )项数值最为接近。 提示:①P1和P2分别为永久荷载和楼面活载的标准值;不考虑活载折减。 ②P1和P2仅为第5层的集中力。
- A.P1=12.5;P2=20.5
- B.P1=20.5;P2=50.5
- C.P1=50.5;P2=20.5
- D.P1=8.0;P2=30.0
-
某6层办公楼的框架(填充墙)结构,其平面图与计算简图如下图所示。
已知:1~6层所有柱截面为500mm×600mm;所有纵向梁(x向)截面均为250mm×500mm,自重3.125kN/m;所有横向梁(y向)截面均为250mm×700mm,自重4.375kN/m:所有柱、梁的混凝土强度等级均为C40。2~6层楼面永久荷载5.0kN/m2,活载2.5kN/m2;屋面永久荷载7.0kN/m2,活载0.7kN/m2;楼面和屋面的永久荷载包括楼板自重、粉刷与吊顶等。除屋面梁外,其他各层纵向梁(x向)和横向梁(y向)上均作用有填充墙、门窗等均布线荷载2.0kN/m。计算时忽略柱子自重的影响。上述永久荷载与活载均为标准值。
提示:计算荷载时,楼面及屋面的面积均按轴线间的尺寸计算。
当简化作平面框架进行内力分析时,作用在计算简图17.000m标高处的q1和q3(kN/m),应和下列( )项数值最为接近。 提示:①q1和q3分别为楼面永久荷载和活荷载的标准值,但q1包括梁自重在内;不考虑活载折减。 ②板长边/板短边≥2.0时,按单向板导荷载。
- A.q1=36.38;q3=30.00
- B.q1=32.00;q3=15.00
- C.q1=30.00;q3=36.38
- D.q1=26.38;q3=10.00


















轴线间的楼板(单向板)进行计算时,假定该板的跨中弯矩为0.1ql2,试问该楼板每米宽板带的跨中弯距设计值M(kN·m)应和下列( )项数值最为接近。